The King's Pine

Production Design

Task

The King's Pine is a short film set in Georgian Britain. It follows a royal family that descends into madness at the hands of their Prince - who has grown smitten with a mysterious servant. As the production designer, I managed the look of the film and the transformation of several locations into a dining room, king's study, and servant's chambers.

Production

The film was primarily shot in two houses in Winston-Salem, NC. Extensive work was done to transform these locations into a period-accurate set, including complete replacement of furniture and light fixtures, installation of temporary molding, and styled curtains that were cut and sewn to size.

Pre-Visualization

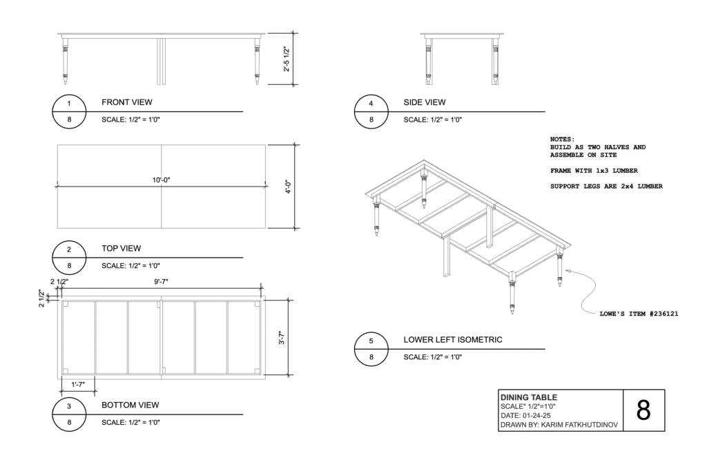
3D models were made in Sketchup prior to beginning location work. These were based on the actual layout and dimensions of the shooting locations and included style and set decoration details.

Due to unforeseen circumstances, a location was lost and two out of the three sets had to be moved to a new house. Although plans had to be redrawn and the work adapted to the changed spaces, laying the groundwork in advance streamlined the fabrication and decoration process.

Production

The film was primarily shot in two houses in Winston-Salem, NC. Extensive work was done to transform these locations into a period-accurate set, including complete replacement of furniture and light fixtures, installation of temporary molding, and styled curtains that were cut and sewn to size.

Pre-Visualization

3D models were made in Sketchup prior to beginning location work. These were based on the actual layout and dimensions of the shooting locations and included style and set decoration details.

Due to unforeseen circumstances, a location was lost and two out of the three sets had to be moved to a new house. Although plans had to be redrawn and the work adapted to the changed spaces, laying the groundwork in advance streamlined the fabrication and decoration process.

Preparation

Detailed floor plans were made based on site visits. These were used by the construction and set decoration teams for set layout and dimensions. They were also shared with the camera, grip, and electric teams, who referenced them for camera blocking and lighting plans.

Preparation

Detailed floor plans were made based on site visits. These were used by the construction and set decoration teams for set layout and dimensions. They were also shared with the camera, grip, and electric teams, who referenced them for camera blocking and lighting plans.

Fabrication

Several pieces were constructed from scratch to have full control over dimensions and visual style. The main construction work came down to the dining table, bed, and panel molding pieces. They were then finished accordingly - for example, the wooden bed was weathered down with washes, distressed by chipping at the lumber, and steel-branded to create marks resembling witchcraft.

King's Study

The densest out of the three sets, the candlelit king's study featured ornate furniture, hand-sewn curtains, and a myriad of props that helped to establish the time period as well as the king's character.

King's Study

The densest out of the three sets, the candlelit king's study featured ornate furniture, hand-sewn curtains, and a myriad of props that helped to establish the time period as well as the king's character.

Servant's Chambers

The chambers were set in a cellar that hadn't been touched in years. This required additional work to clean the space and bring it to life. The final set included the built bed with a straw mattress, clothes and rags hung from the ceiling, lots of additional greenery, and numerous props for the servant witch.

Dining Room

As it was the setting for a royal dinner, the dining room featured an extravagant setup with extensive decoration and food styling work. Showy tableware, candle operas and sconces, and a tablecloth with a runner sewn by the set decorator brought the space to life.

Dining Room

As it was the setting for a royal dinner, the dining room featured an extravagant setup with extensive decoration and food styling work. Showy tableware, candle operas and sconces, and a tablecloth with a runner sewn by the set decorator brought the space to life.

Production Designer: Karim Fatkhutdinov
Art Director: Justin Rivera
Set Decorator: Kayla Gulliver
Construction Coordinator: Megan Snetsky
Lead Scenic: Ella Molkenthin
Property Master: Mattie Reeves
BTS Photographers: Grant Pierson, Martin Collo, Sophia Moore

Director: Quincy Johnson
Producer: Rain Toney
Cinematographer: Rugile Zemaityte

Scroll to Top